• Po - Pá 9:00 - 17:00
  • info@chbigroup.com
  • +420 602 473 066
Úvodní fotka

O projektu

Již 12 měsíců pracujeme na přípravě a realizaci výstavby typologického trojdomu blízko Říčan, v dojezdové vzdálenosti blízko Prahy. Tento typ výstavby je pro nás typickou a strategickou formou realizace developmentu do příštích let. Výstavba v obcích blízko Prahy je řádově rychlejší než v samotné Praze díky flexibilnějším povolovacím procesům a také dostupnějším pozemkům.

Historicky jsme nakoupili pozemek s rodinným domem z exekuce v rámci dědického řízení za účelem krátkodobé spekulace a rychlého přeprodeje. Jelikož dům si vyžadoval významnou rekonstrukci, poptávka za námi stanovenou cenu byla výrazně slabší, než jsme očekávali. Během půl roku se nám ozvali pouze dva zájemci.

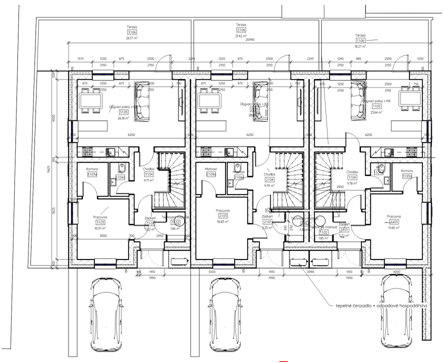
Rozhodli jsme se proto hodnotu pozemku a lokality zrealizovat sami skrze zpracování architektonického studie a projektové dokumentace. V aktuální fázi máme zpracovanou architektonickou studii odsouhlasenou městem, která nám říká, že na pozemku budeme schopni vybudovat tři rodinné domy o užitné ploše 116 m2 za rodinný dům, se samostatným parkovacím stáním a malou předzahrádkou.

Máme v ruce rovněž demoliční výměr na aktuálně stojící původní rodinný dům na pozemku. Náklady demolice máme vytendrovány na 1.500.000 Kč a demolice by měla začít v průběhu února 2026. Rovněž aktuálně zpracováváme žádost o stavební povolení na výstavbu trojdomů, kterou plánujeme podat do konce března 2026 a věříme v započetí výstavby v červenci 2026.